97491 Aidhausen, Hassberge
Ferienhaus im Fachwerkhof
Gemütliches Haus für bis zu 19 Personen
HAUSEIGNUNG
Freizeit, Klassen, Musik, Familien, private Feiern
KAPAZITÄT
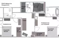
19 Betten in 1 DZ und 5 MBZ mit 3 bis 4 Betten
1 Gruppenraum für 19 Personen
SANITÄRE ANLAGEN
1 Zimmer mit Dusche und WC, 4 Duschräume
ENTFERNUNGEN
Bademöglichkeit 3 km, Hallenbad 3 km, Bahnhof 17 km
EXTRAS
Alleinbelegung ab 10 Personen
PREISE
20.00 € bis 26.00 € pro Person (Selbstverpflegung)
Ausstattung
Bauernhaus aus dem 19. Jahrhundert im Naturpark Haßberge. Unterkunft für bis zu 19 Personen in 6 Schlafzimmern mit privater Atmosphäre. Auf Wunsch kann zwei weitere Zimmer mit Bad im 5 Fußminuten entferntem Gästehaus dazu gemietet werden.Stilvoll mit z.T. antiken Möbeln eingerichtet. Eine lange Tafel, sowie die gut ausgestattete Landhausküche bieten den idealen Rahmen zum Feiern mit der Familie oder Freunden. Hier schlafen Sie in gemütlichen alten Betten, müssen aber auf modernen Komfort, wie Zentralheizung bzw. Fußbodenheizung und Wannenbäder nicht verzichten.
Im Wohnraum (Gruppenraum) befindet sich ein Heizkamin für die Gemütlichkeit. Das Holz dafür kann beim Vermieter erworben werden.
Der durch ein Hoftor abgeschirmte, idyllische Innenhof mit überdachtem Freisitz und angrenzender Wiese lädt zum Spielen, Entspannen und geselligen Beisammensein ein. Das Haus ist besonders beliebt bei Familien mit kleinen Kindern, durch drei Schlafzimmer und zwei Bäder im Erdgeschoss aber auch für Senioren bestens geeignet.
Parkplätze sind im Hof und in unmittelbarer Nähe des Ferienhauses in ausreichender Anzahl vorhanden. Seit kurzem besteht die Möglichkeit, E-Fahrzeuge an der hauseigenen Wallbox zum ortsüblichen Tarif aufzuladen.
Freizeit
Friesenhausen liegt am Fuße der Haßberge unterhalb des Aussichtspunktes "Schwedenschanze. Hier kreuzen etliche Rad-und Wanderwege. In 9 km Entfernung befindet sich der größte See Unterfrankens (Ellertshäuser See). Für Wellnessfans bieten die zahlreichen Kurorte im Umkreis von 50 km (z.B. Bad Kissingen, Bad Königshofen, Bad Neustadt, Bad Rodach) vielfältige Möglichkeiten. Auch kulturell ist hier einiges geboten. Das legendäre Openair in Schloss Eyrichshof (20 km), Anne Maars Fränkisches Theater in Maßbach (18 km) und das Programmkino in Zeil mit Filmfrühstück sind nur einige Beispiele der kulturellen Vielfalt.Ausflugsziele
Friesenhausen liegt im Naturpark Haßberge, einer Bilderbuchlandschaft, nahe der 'Straße der Fachwerkromantik'. Burgen und Schlösser prägen das Bild der Landschaft ebenso, wie die regional typischen Streuobstwiesen.Im Umkreis von 50 km finden sich zahlreiche Kurorte und historische Stätten Nirgendwo in Deutschland finden Sie eine solche Dichte von Schlössern und Burgen. Von hier aus können Sie historisch und kulturell bedeutsame Städte, wie Coburg, Bamberg, Schweinfurt, Würzburg, Bad Kissingen besuchen. Auch Rothenburg o.T., Eisenach, Weimar und Erfurt sind in ca. 1 Autostunde erreichbar.
In unmittelbarer Nähe kreuzen zahlreiche Rad-und Wanderwege, zum Beispiel Burgen-und Schlösser-Qualitätswanderweg, Keltenerlebnisweg, Rennweg oder Friedrich-Rückert-Wanderweg. Saale, Main und der 9,5 km entfernte Ellertshäuser See bieten vielfältige Wassersportmöglichkeiten. An den Hängen der Hassberge lässt es sich im Winter gut Schlitten fahren, aber auch die Skigebiete Hochrhön und Thüringer Wald sind in erreichbarer Nähe.
Seit kurzem besteht die Möglichkeit, als Ergänzung zum (und zum Tarif vom) ÖPNV ein Ruftaxi (Callheinz) zu nutzen, das Sie zu verschiedenen Wanderzielen fährt und auch wieder abholt. Hiermit können Sie sich auch vom Zug am Schonunger Bahnhof abholen (und natürlich auch hinbringen lassen) lassen. Die Haltestelle befindet sich direkt vor dem Ferienhaus.
Feierlichkeiten
Das Ferienhaus im Fachwerkhof eignet sich für kleine Feiern im familiären Kreis mit bis zu 20 Personen.Zusätzliche Angaben
TV auf Anfrage. Im Preis enthalten sind die Endreinigung, die Nebenkosten,Bettwäsche und Handtücher sind mitzubringen.
Kinder unter 5 Jahren und Hunde werden mit 8,00 € pro Nacht berechnet. Kinder unter 3 Jahren sind frei.
Lage
Belegungsplan
| März 2026 | ||||||
| Mo | Di | Mi | Do | Fr | Sa | So |
| 1 | ||||||
| 2 | 3 | 4 | 5 | 6 | 7 | 8 |
| 9 | 10 | 11 | 12 | 13 | 14 | 15 |
| 16 | 17 | 18 | 19 | 20 | 21 | 22 |
| 23 | 24 | 25 | 26 | 27 | 28 | 29 |
| 30 | 31 | |||||
| April 2026 | ||||||
| Mo | Di | Mi | Do | Fr | Sa | So |
| 1 | 2 | 3 | 4 | 5 | ||
| 6 | 7 | 8 | 9 | 10 | 11 | 12 |
| 13 | 14 | 15 | 16 | 17 | 18 | 19 |
| 20 | 21 | 22 | 23 | 24 | 25 | 26 |
| 27 | 28 | 29 | 30 | |||
| Mai 2026 | ||||||
|
||||||
| Juni 2026 | ||||||
|
||||||
| Juli 2026 | ||||||
|
||||||
| August 2026 | ||||||
|
||||||
| September 2026 | ||||||
|
||||||
| Oktober 2026 | ||||||
|
||||||
| November 2026 | ||||||
|
||||||
| Dezember 2026 | ||||||
|
||||||
| Januar 2027 | ||||||
|
||||||
| Februar 2027 | ||||||
|
||||||
| März 2027 | ||||||
|
||||||
| April 2027 | ||||||
|
||||||
| Mai 2027 | ||||||
|
||||||
| Juni 2027 | ||||||
|
||||||
| Juli 2027 | ||||||
|
||||||
| August 2027 | ||||||
|
||||||
| September 2027 | ||||||
|
||||||
| Oktober 2027 | ||||||
|
||||||
| November 2027 | ||||||
|
||||||
| Dezember 2027 | ||||||
|
||||||
| Januar 2028 | ||||||
|
||||||
| Februar 2028 | ||||||
|
||||||
| März 2028 | ||||||
|
||||||
| April 2028 | ||||||
|
||||||
| Mai 2028 | ||||||
|
||||||
| Juni 2028 | ||||||
|
||||||
| Juli 2028 | ||||||
|
||||||
| August 2028 | ||||||
|
||||||
| September 2028 | ||||||
|
||||||
| Oktober 2028 | ||||||
|
||||||
| November 2028 | ||||||
|
||||||
| Dezember 2028 | ||||||
|
||||||
| Januar 2029 | ||||||
|
||||||
| Februar 2029 | ||||||
|
||||||
| März 2029 | ||||||
|
||||||
| April 2029 | ||||||
|
||||||
| Mai 2029 | ||||||
|
||||||
| Juni 2029 | ||||||
|
||||||
| Juli 2029 | ||||||
|
||||||
| August 2029 | ||||||
|
||||||
| September 2029 | ||||||
|
||||||
| Oktober 2029 | ||||||
|
||||||
| November 2029 | ||||||
|
||||||
| Dezember 2029 | ||||||
|
||||||
| Januar 2030 | ||||||
|
||||||
| Februar 2030 | ||||||
|
||||||
| März 2030 | ||||||
|
||||||
| April 2030 | ||||||
|
||||||
| Mai 2030 | ||||||
|
||||||
| Juni 2030 | ||||||
|
||||||
| Juli 2030 | ||||||
|
||||||
| August 2030 | ||||||
|
||||||
| September 2030 | ||||||
|
||||||
| Oktober 2030 | ||||||
|
||||||
| November 2030 | ||||||
|
||||||
| Dezember 2030 | ||||||
|
||||||
| Januar 2031 | ||||||
|
||||||
| Februar 2031 | ||||||
|
||||||
| März 2031 | ||||||
|
||||||
| April 2031 | ||||||
|
||||||
| Mai 2031 | ||||||
|
||||||
| Juni 2031 | ||||||
|
||||||
| Juli 2031 | ||||||
|
||||||
| August 2031 | ||||||
|
||||||
| September 2031 | ||||||
|
||||||
| Oktober 2031 | ||||||
|
||||||
| November 2031 | ||||||
|
||||||
| Dezember 2031 | ||||||
|
||||||
| Januar 2032 | ||||||
|
||||||
| Februar 2032 | ||||||
|
||||||
| März 2032 | ||||||
|
||||||
| Haus frei | teilweise belegt | auf Anfrage | Haus belegt |
| Jahresübersicht | letzte Bearbeitung: 25.02.2026 |
12 Gäste berichten …
Steffi Grüner im November 2025
Wir haben einen kleinen Familienurlaub mit 10 Personen in Friesenhausen verbracht und waren in den Ferienwohnungen Abendrot und Mittagsruhe untergebracht. Wir hatten ausreichend Platz und auch die Ausstattung der Küche war mehr als genug. Friesenhausen war ein super Ausgangspunkt für ein paar kleine Wanderungen und wir haben auch eine der nahegelegenen Kurstädte besucht (mögliche Ausflugsziele sind auch auf der Homepage der Vermieterin zu finden). Der großzügige Aufenthaltsraum war super geeignet um zusammen zu kochen und Spiele zu spielen. Richtig gemütlich wurde es mit dem Kaminofen. Es hat uns insgesamt sehr gut gefallen.
Albrecht Hort im August 2025
Sowohl die Lage (im Ort, aber abgeschlossener Hof) als auch die Ausstattung sind sehr gut und das Preis-/Leistungsverhältnis im Vergleich (ich organisiere jährlich ein Wanderwochenende in einem Gruppenhaus) absolut fair. Der leicht verwilderte Garten stört evtl. den Hardcore-Schrebergärtner; uns als alte Pfadfinder hat das gefallen und für Kinder ist der ein toller Abenteuerspielplatz! Die Vermieterin war freundlich, gut erreichbar und hat mir die Kaution zeitnah erstattet. Nur das Nachtleben in Friesenhausen ist nix für "Partypeople" ;-)
Wiebke Fleischmann im Juli 2025
Ideal für größere Gruppen- oder Familientreffen, an denen viele separate Schlafzimmer benötigen werden und Selbstversorgung gewünscht ist. Sowohl in der großen Küche als auch unter dem Freisitz finden alle Platz. Die Küche ist sehr gut ausgestattet. Die Zimmer z.T. mit separatem Bad sind einfach, aber sauber - uns hat es an nichts gefehlt. Bei Bedarf kann eine weitere Wohnung (ehemaliger neu ausgebauter Stall) dazu gemietet werden. Der Kontakt zur Vermieterin war sehr nett und unkompliziert. Dadurch, dass der Hof durch ein großes Tor von der Durchgangsstraße abgeschlossen ist, können auch kleinere Kinder dort gefahrlos spielen. Bettwäsche, Handtücher, Toilettenpapier und Spültabs sind selber mitzubringen.
J im Mai 2025
Wir waren ein Wochenende in den FEWOs Mittagsruhe und Abendrot. Wir haben uns sehr wohl gefühlt. Es ist sehr gut ausgestattet. Alles da was man braucht. Der Ort und die Natur in der Umgebung sind total schön.,Die Sitzgelegenheiten könnten etwas gemütlicher sein. Ansonsten waren wir zufrieden.
Christine im Mai 2025
Ich kann mich der Bewertung von Volker nur anschließen. Auch Nachfragen an die Vermieterin im Vorfeld des Aufenthaltes wurden von ihr immer in kurzer Zeit beantwortet.
Volker im April 2025
Wir waren mit 19 Personen, davon 7 Kinder im Alter von 1-8Jahren, sowie einem Hund im Ferienhaus. Wir haben uns alle sehr wohl gefühlt. Das Grundstück ist zur Strasse hin sicher abgegrenzt, so dass wir nicht ständig auf die Kinder achten mussten. An der hinteren Grundstücksgrenze stehte eine Hecke, die für Hunde durchlässig ist. Im Haus ist alles notwendige vorhanden. Die Küche ist für eine große Personengruppe gut ausgestattet, insbesondere große Töpfe und viel Geschirr ist vorhanden. Die Spülmaschine ist sehr wertvoll. Verbrauchsmaterialien und auch Gewürze müssen mitgebracht werden. Ca 500m entfernt liegt ein Spielplatz mit anliegendem Fußballplatz. Wander- und Fahrradwege sind vom Haus aus erreichbar.
M.P. im Oktober 2023
Wir hatten ein sehr entspanntes Wochenende auf diesem schönen Hof. Es gibt jede Menge Platz, innen wie aussen, toll auch für die Kinder zum Spielen. Und es gab alles was man so braucht. Auch die Umgebung lädt ein für etwas Bewegung, frische Luft und Aussicht.
Judy im September 2022
Ein sehr schönes, uriges Ferienhaus, das liebevoll teilweise mit sehr schönen alten Möbeln eingerichtet ist. Der Kontakt mit der Vermieterin war sehr angenehm und unkompliziert. Wir waren 13 Personen und hatten den Hof für uns, würden jederzeit wieder für eine gemütliche Feier dort buchen, der Freisitz ist im Sommer sicher unfassbar schön zu nutzen.
Thorsten Zebelein im November 2018
Schönes Haus schöne Gegend alles in allem top Haus!
Claudia Hartmann im Juli 2015
Das Haus ist für eine große Gruppe ideal. Wir saßen toll im freien. Nur eins haben wir zu bemängeln. Die Kaffeemaschine, aber die nette Vermieterin hat uns gleich geholfen. Wir würden es weiter empfehlen. Es war eine schöne Zeit.
AK Müller im Mai 2013
Mir hat das Haus und die Gegend sehr gefallen. Jede Kleinfamilie hatte seine eigenen zwei Räume und ein Badezimmer dazu, perfekt. Der geräumige, sichere Hof war ideal für die Kinder, die mit ihren Laufrädern und kleinen Fahrrädern ihre Runden zogen. Die Betreuung vor Ort war sehr herzlich. Vielen Dank!
Beatrix im Dezember 2012
Originelles und gemütliches Haus, schön warm durch den Kamin, freundliche und sehr entgegenkommende Vermieterin, Brötchendienst, schöne verschneite Landschaft, viel Platz. Alles war genau richtig für unser Feier-Wochenende mit 9 Personen.
Steffi Grüner im November 2025
Wir haben einen kleinen Familienurlaub mit 10 Personen in Friesenhausen verbracht und waren in den Ferienwohnungen Abendrot und Mittagsruhe untergebracht. Wir hatten ausreichend Platz und auch die Ausstattung der Küche war mehr als genug. Friesenhausen war ein super Ausgangspunkt für ein paar kleine Wanderungen und wir haben auch eine der nahegelegenen Kurstädte besucht (mögliche Ausflugsziele sind auch auf der Homepage der Vermieterin zu finden). Der großzügige Aufenthaltsraum war super geeignet um zusammen zu kochen und Spiele zu spielen. Richtig gemütlich wurde es mit dem Kaminofen. Es hat uns insgesamt sehr gut gefallen.
Albrecht Hort im August 2025
Sowohl die Lage (im Ort, aber abgeschlossener Hof) als auch die Ausstattung sind sehr gut und das Preis-/Leistungsverhältnis im Vergleich (ich organisiere jährlich ein Wanderwochenende in einem Gruppenhaus) absolut fair. Der leicht verwilderte Garten stört evtl. den Hardcore-Schrebergärtner; uns als alte Pfadfinder hat das gefallen und für Kinder ist der ein toller Abenteuerspielplatz! Die Vermieterin war freundlich, gut erreichbar und hat mir die Kaution zeitnah erstattet. Nur das Nachtleben in Friesenhausen ist nix für "Partypeople" ;-)
Wiebke Fleischmann im Juli 2025
Ideal für größere Gruppen- oder Familientreffen, an denen viele separate Schlafzimmer benötigen werden und Selbstversorgung gewünscht ist. Sowohl in der großen Küche als auch unter dem Freisitz finden alle Platz. Die Küche ist sehr gut ausgestattet. Die Zimmer z.T. mit separatem Bad sind einfach, aber sauber - uns hat es an nichts gefehlt. Bei Bedarf kann eine weitere Wohnung (ehemaliger neu ausgebauter Stall) dazu gemietet werden. Der Kontakt zur Vermieterin war sehr nett und unkompliziert. Dadurch, dass der Hof durch ein großes Tor von der Durchgangsstraße abgeschlossen ist, können auch kleinere Kinder dort gefahrlos spielen. Bettwäsche, Handtücher, Toilettenpapier und Spültabs sind selber mitzubringen.
J im Mai 2025
Wir waren ein Wochenende in den FEWOs Mittagsruhe und Abendrot. Wir haben uns sehr wohl gefühlt. Es ist sehr gut ausgestattet. Alles da was man braucht. Der Ort und die Natur in der Umgebung sind total schön.,Die Sitzgelegenheiten könnten etwas gemütlicher sein. Ansonsten waren wir zufrieden.
Christine im Mai 2025
Ich kann mich der Bewertung von Volker nur anschließen. Auch Nachfragen an die Vermieterin im Vorfeld des Aufenthaltes wurden von ihr immer in kurzer Zeit beantwortet.
Volker im April 2025
Wir waren mit 19 Personen, davon 7 Kinder im Alter von 1-8Jahren, sowie einem Hund im Ferienhaus. Wir haben uns alle sehr wohl gefühlt. Das Grundstück ist zur Strasse hin sicher abgegrenzt, so dass wir nicht ständig auf die Kinder achten mussten. An der hinteren Grundstücksgrenze stehte eine Hecke, die für Hunde durchlässig ist. Im Haus ist alles notwendige vorhanden. Die Küche ist für eine große Personengruppe gut ausgestattet, insbesondere große Töpfe und viel Geschirr ist vorhanden. Die Spülmaschine ist sehr wertvoll. Verbrauchsmaterialien und auch Gewürze müssen mitgebracht werden. Ca 500m entfernt liegt ein Spielplatz mit anliegendem Fußballplatz. Wander- und Fahrradwege sind vom Haus aus erreichbar.
M.P. im Oktober 2023
Wir hatten ein sehr entspanntes Wochenende auf diesem schönen Hof. Es gibt jede Menge Platz, innen wie aussen, toll auch für die Kinder zum Spielen. Und es gab alles was man so braucht. Auch die Umgebung lädt ein für etwas Bewegung, frische Luft und Aussicht.
Judy im September 2022
Ein sehr schönes, uriges Ferienhaus, das liebevoll teilweise mit sehr schönen alten Möbeln eingerichtet ist. Der Kontakt mit der Vermieterin war sehr angenehm und unkompliziert. Wir waren 13 Personen und hatten den Hof für uns, würden jederzeit wieder für eine gemütliche Feier dort buchen, der Freisitz ist im Sommer sicher unfassbar schön zu nutzen.
Thorsten Zebelein im November 2018
Schönes Haus schöne Gegend alles in allem top Haus!
Claudia Hartmann im Juli 2015
Das Haus ist für eine große Gruppe ideal. Wir saßen toll im freien. Nur eins haben wir zu bemängeln. Die Kaffeemaschine, aber die nette Vermieterin hat uns gleich geholfen. Wir würden es weiter empfehlen. Es war eine schöne Zeit.
AK Müller im Mai 2013
Mir hat das Haus und die Gegend sehr gefallen. Jede Kleinfamilie hatte seine eigenen zwei Räume und ein Badezimmer dazu, perfekt. Der geräumige, sichere Hof war ideal für die Kinder, die mit ihren Laufrädern und kleinen Fahrrädern ihre Runden zogen. Die Betreuung vor Ort war sehr herzlich. Vielen Dank!
Beatrix im Dezember 2012
Originelles und gemütliches Haus, schön warm durch den Kamin, freundliche und sehr entgegenkommende Vermieterin, Brötchendienst, schöne verschneite Landschaft, viel Platz. Alles war genau richtig für unser Feier-Wochenende mit 9 Personen.



















