14822 Brück, Fläming
Tagungshaus Baitz
Kinderherberge.de
HAUSEIGNUNG
Freizeit, Seminare, Klassen, Musik, Familien
KAPAZITÄT
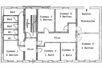
42 Betten in 2 EZ, 2 DZ und 10 MBZ mit 3 bis 5 Betten
3 Gruppenräume für 20, 30 und 50 Personen
SANITÄRE ANLAGEN
8 Duschräume
ENTFERNUNGEN
Bademöglichkeit 6 km, Hallenbad 6 km, Bahnhof 0,8 km
EXTRAS
Alleinbelegung ab 35 Personen
PREISE
18.00 € bis 20.00 € pro Person (Selbstverpflegung)
42.00 € bis 50.00 € pro Person (Vollverpflegung)
Ausstattung
QMJ geprüftes Haus, 42 Betten auf 3 Etagen (s.Grundrisse unter Fotos)Seminarraum 90 m² (Overhead, Flipchart, Matratzen, Tische, Stühle, Audio + Video), Diaprojektor, Fernseher, Spielzimmer, Gymnastikraum, Sauna, Tischtennisraum, Trockenraum, 8 Autoparkplätze
Ausflugsziele
Potsdam 35 km, Wittenberg 40 km, Berlin 60 km, Burgen und Schlösser in der näheren Umgebung, Thermalbad - Stein Therme in Belzig 6 km, Naturschutzgebiet und Trappenschutzgebiet am Haus.Freizeit
Spielwiese, Kinderspielplatz, Streichelzoo, Bach zum Spielen und Planschen, Lagerfeuerplatz, Grillplatz, Fußballfeld im Dorf, Reitplatz, Wandern, Radfahren, Museen, Kino, NaturschutzgebieteProgramm Angebote: für Kinder und Jugendruppen zum Teil gratis - Umweltbildung - mit erfahrenen Kinderpädagoginnen unterwegs in Wald, organisierte Rallyes und Schnitzeljagden, Malen mit Künstlern, Filzen, Treckerfahrt durch den Wald, Reiten
Lage
Belegungsplan
| Dezember 2025 | ||||||
| Mo | Di | Mi | Do | Fr | Sa | So |
| 1 | 2 | 3 | 4 | 5 | 6 | 7 |
| 8 | 9 | 10 | 11 | 12 | 13 | 14 |
| 15 | 16 | 17 | 18 | 19 | 20 | 21 |
| 22 | 23 | 24 | 25 | 26 | 27 | 28 |
| 29 | 30 | 31 | ||||
| Januar 2026 | ||||||
| Mo | Di | Mi | Do | Fr | Sa | So |
| 1 | 2 | 3 | 4 | |||
| 5 | 6 | 7 | 8 | 9 | 10 | 11 |
| 12 | 13 | 14 | 15 | 16 | 17 | 18 |
| 19 | 20 | 21 | 22 | 23 | 24 | 25 |
| 26 | 27 | 28 | 29 | 30 | 31 | |
| Februar 2026 | ||||||
|
||||||
| März 2026 | ||||||
|
||||||
| April 2026 | ||||||
|
||||||
| Mai 2026 | ||||||
|
||||||
| Juni 2026 | ||||||
|
||||||
| Juli 2026 | ||||||
|
||||||
| August 2026 | ||||||
|
||||||
| September 2026 | ||||||
|
||||||
| Oktober 2026 | ||||||
|
||||||
| November 2026 | ||||||
|
||||||
| Dezember 2026 | ||||||
|
||||||
| Januar 2027 | ||||||
|
||||||
| Februar 2027 | ||||||
|
||||||
| März 2027 | ||||||
|
||||||
| April 2027 | ||||||
|
||||||
| Mai 2027 | ||||||
|
||||||
| Juni 2027 | ||||||
|
||||||
| Juli 2027 | ||||||
|
||||||
| August 2027 | ||||||
|
||||||
| September 2027 | ||||||
|
||||||
| Oktober 2027 | ||||||
|
||||||
| November 2027 | ||||||
|
||||||
| Dezember 2027 | ||||||
|
||||||
| Januar 2028 | ||||||
|
||||||
| Februar 2028 | ||||||
|
||||||
| März 2028 | ||||||
|
||||||
| April 2028 | ||||||
|
||||||
| Mai 2028 | ||||||
|
||||||
| Juni 2028 | ||||||
|
||||||
| Juli 2028 | ||||||
|
||||||
| August 2028 | ||||||
|
||||||
| September 2028 | ||||||
|
||||||
| Oktober 2028 | ||||||
|
||||||
| November 2028 | ||||||
|
||||||
| Dezember 2028 | ||||||
|
||||||
| Januar 2029 | ||||||
|
||||||
| Februar 2029 | ||||||
|
||||||
| März 2029 | ||||||
|
||||||
| April 2029 | ||||||
|
||||||
| Mai 2029 | ||||||
|
||||||
| Juni 2029 | ||||||
|
||||||
| Juli 2029 | ||||||
|
||||||
| August 2029 | ||||||
|
||||||
| September 2029 | ||||||
|
||||||
| Oktober 2029 | ||||||
|
||||||
| November 2029 | ||||||
|
||||||
| Dezember 2029 | ||||||
|
||||||
| Januar 2030 | ||||||
|
||||||
| Februar 2030 | ||||||
|
||||||
| März 2030 | ||||||
|
||||||
| April 2030 | ||||||
|
||||||
| Mai 2030 | ||||||
|
||||||
| Juni 2030 | ||||||
|
||||||
| Juli 2030 | ||||||
|
||||||
| August 2030 | ||||||
|
||||||
| September 2030 | ||||||
|
||||||
| Oktober 2030 | ||||||
|
||||||
| November 2030 | ||||||
|
||||||
| Dezember 2030 | ||||||
|
||||||
| Januar 2031 | ||||||
|
||||||
| Februar 2031 | ||||||
|
||||||
| März 2031 | ||||||
|
||||||
| April 2031 | ||||||
|
||||||
| Mai 2031 | ||||||
|
||||||
| Juni 2031 | ||||||
|
||||||
| Juli 2031 | ||||||
|
||||||
| August 2031 | ||||||
|
||||||
| September 2031 | ||||||
|
||||||
| Oktober 2031 | ||||||
|
||||||
| November 2031 | ||||||
|
||||||
| Dezember 2031 | ||||||
|
||||||
| Haus frei | teilweise belegt | auf Anfrage | Haus belegt |
| Jahresübersicht | letzte Bearbeitung: 18.05.2024 |
6 Gäste berichten …
Reichmann im November 2023
Es war alles super vorbereitet, wir haben ein tolles Wochenende verbracht
Tanja B. im Juni 2022
Wir fahren seit Jahren immer wieder mit einigen Familien unserer Gemeinde in das Tagungshaus und fühlen uns total wohl. Die Kinder, egal wie alt, genießen die Zeit auf dem Gelände mit Bach, Tieren und kleinem Spielplatz. Die Räumlichkeiten sind sauber und die Verpflegung perfekt. Das Traktorfahren mit Bernhard ist immer wieder ein Highlight. Wir freuen uns jetzt schon auf ein Wiedersehn.
Luckenwalder Frauengruppe im August 2021
Wir , 6 Frauen, haben ein Trainings Wochenende in Baitz abgehalten. Wir hatten die Etage 1, es war sehr schön, wir hatten absolut unsere Ruhe, konnten am Abend grillen und der schöne Garten lädt zum verweilen ein. Wir kommen sicher noch einmal, dann mit unseren Kindergruppen. Ein kleiner Hinweis noch; Da der Eigentümer nicht immer vor Ort ist, wäre es wünschenswert, (gerade für Kindergruppen), wenn auf jeder Etage ein Sanitätskasten hängt und 1-2 Kühlakkus im Eisfach liegen.... Dankeschön. Lg Petra Huhnstock
G. Yapici im November 2017
Wir waren sehr zufrieden. Die Räume waren sehr sauber, die Ausstattung sehr gut und gemültlich. Wir können es nur weiterempfehlen.
Dr. Dieter Stammler im Oktober 2015
Wir waren zu einem Familientreffen mit insgesamt 30 Personen, darunter 8 Kundern unter 10 Jahren in Haus Baitz. Dafür war das Haus mit seiner Zimmerausstattung, Etagenküchen, Gemeinschaftsraum, Garten und Spielgeräten ideal geeignet. Freundliche Betreuung, günstige Verkehrsanbindung an Autobahn und Zug. Insgesamt: sehr zu empfehlen, gutes Preis-Leistungs-Verhältnis!
birgit camilla dittrich im September 2007
Wir waren an einem Wochenende im September, mit einer Gemeindefreizeit in Baitz. Uns hat es sehr gut gefallen. Zimmer sind schön, sauber und gemütlich. Es werden auf Bedürfnisse eingegangen. Wir werden nächstes Jahr wieder unsere Gemeindefreizeit dort verbringen.
Reichmann im November 2023
Es war alles super vorbereitet, wir haben ein tolles Wochenende verbracht
Tanja B. im Juni 2022
Wir fahren seit Jahren immer wieder mit einigen Familien unserer Gemeinde in das Tagungshaus und fühlen uns total wohl. Die Kinder, egal wie alt, genießen die Zeit auf dem Gelände mit Bach, Tieren und kleinem Spielplatz. Die Räumlichkeiten sind sauber und die Verpflegung perfekt. Das Traktorfahren mit Bernhard ist immer wieder ein Highlight. Wir freuen uns jetzt schon auf ein Wiedersehn.
Luckenwalder Frauengruppe im August 2021
Wir , 6 Frauen, haben ein Trainings Wochenende in Baitz abgehalten. Wir hatten die Etage 1, es war sehr schön, wir hatten absolut unsere Ruhe, konnten am Abend grillen und der schöne Garten lädt zum verweilen ein. Wir kommen sicher noch einmal, dann mit unseren Kindergruppen. Ein kleiner Hinweis noch; Da der Eigentümer nicht immer vor Ort ist, wäre es wünschenswert, (gerade für Kindergruppen), wenn auf jeder Etage ein Sanitätskasten hängt und 1-2 Kühlakkus im Eisfach liegen.... Dankeschön. Lg Petra Huhnstock
G. Yapici im November 2017
Wir waren sehr zufrieden. Die Räume waren sehr sauber, die Ausstattung sehr gut und gemültlich. Wir können es nur weiterempfehlen.
Dr. Dieter Stammler im Oktober 2015
Wir waren zu einem Familientreffen mit insgesamt 30 Personen, darunter 8 Kundern unter 10 Jahren in Haus Baitz. Dafür war das Haus mit seiner Zimmerausstattung, Etagenküchen, Gemeinschaftsraum, Garten und Spielgeräten ideal geeignet. Freundliche Betreuung, günstige Verkehrsanbindung an Autobahn und Zug. Insgesamt: sehr zu empfehlen, gutes Preis-Leistungs-Verhältnis!
birgit camilla dittrich im September 2007
Wir waren an einem Wochenende im September, mit einer Gemeindefreizeit in Baitz. Uns hat es sehr gut gefallen. Zimmer sind schön, sauber und gemütlich. Es werden auf Bedürfnisse eingegangen. Wir werden nächstes Jahr wieder unsere Gemeindefreizeit dort verbringen.














