18195 Grammow, Mecklenburgische Ostseeküste
Natur- und Erholungshof Recknitzberg
HAUSEIGNUNG
Freizeit, Seminare, Klassen, Musik, Familien, private Feiern
KAPAZITÄT
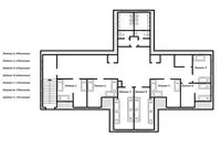
30 Betten in 2 DZ und 5 MBZ mit 4 bis 6 Betten
Zeltplatz für 50 Personen
2 Gruppenräume für 60 und 40 Personen
ENTFERNUNGEN
Bahnhof 15 km
PREISE
10.00 € bis 40.00 € pro Person (Selbstverpflegung)
Ausstattung
Gutshaus mit 10 Zimmer für 19 Personen mit Aufbettung max 23 Personen, Kaminzimmer, Aufenthaltsraum mit Fernseher, Lautsprecheranlage (optimal für Feste), Beamer und Leinwand (Kino),Zeltplatz mit Wasser- und Stromversorgung,
Stellplatz für Wohnmobile,
kleiner Saal für circa 40 Personen,
großer Saal für circa 60 Personen
Freizeit
Tischtennisplatten, Spielwiese, Lagerfeuerplatz, gut gepflegter Badesee, Bogenschießen, Gesellschaftsspiele, Badminton, Grillplatz, Volleyballplatz, Fußballfeld, Steinbackofen (eigenes Brot backen), Schaukeln, Wandern/auch geführte Naturwanderungen, Radfahren, Kanu/Faltboot fahren,Museen, Besuch auf einem Milchviehbetrieb,
Viele Sehenswürdigkeiten ganz in der Nähe z.B. der Vogelpark Marlow, Bernsteinmuseum Ribnitz-Damgarten, Eselhof etc., Ausflug zu den Städten Stralsund, Rostock oder Geifswald (alle circa 30 Minuten entfernt)
Bemerkungen
Wir sind Mitglied im Tourismusverein Vogelregion Recknitztal. Das Haus liegt zwischen NSG Lieper Burg und dem Recknitztalmoor, einem der größten EU Vogelschutzgebiete. Für weitere Informationen verweisen wir auf unsere Website oder unser Facebookprofil.Preise
Zeltplätz/ Bus/ wohnwagen 10,00 € Pro Pers. pro Nacht.Wasser 3,00 € Pro Tag
Strom 5,00 € Pro Tag
Hund 10,00 € Pro Tag
Gutshaus 40,00 € Pro Pers. pro Tag
Im Gutshaus sind Handtücher, Seife und Dusch gel usw. selber mit nehmen.
Küche und Aufenthaltsraum im Gutshaus 50,00 €
Terrasse/Grill Benutzung 10,00 € Pro Tag.
Mehrbetthaus/ Gästehaus 25,00 € Pro Tag,
Keine Handtücher und Seife.
Schlafwagen 100,00 € Pro Nacht
Naturaula 300,00 € Pro Tag
Große Saal mit Terrasse 400,00 € Pro Tag
Kleine Saal mit Kamin 300.00 €
Küche Benutzung 50.00 €
Bettwäsche kostet 8,00 €
Frühstück 12,00 € pro Pers.
Abendbrot 12,00 € pro Pers.
Catering kann bestellt werden bei : angieseasyfood@gmx.de
in Böhlendorf.
Zusätzliche Angaben
Auf dem ca. 7 ha großen Gelände direkt an der Recknitz, das umgeben ist von Wiesen und Wäldern finden Sie viele Möglichkeiten sich sportlich zu betätigen, die Natur zu genießen und die Seele baumeln zu lassen. Ihr Frühstücksei kommt von unseren Hühnern und in unserem Steinbackofen kann man Brot ganz nach seinem Geschmack backen."Naturfreund aufgepasst: Abseits vom Alltagsstress kannst du hier deine Seele baumeln lassen! Die unberührte Natur rund um den Recknitzberg lädt dich ein, sie zu Fuß, mit dem Faltboot oder mit dem Rad zu erkunden. Wenn diese Wildnis nichts für dich ist, mach doch einfach ein bisschen Wellness. Wir haben einen wunderschönen, gepflegten Badesee in der Nähe, in dem sich super planschen lässt.
Sehnst du dich mit Sonnenbrand und Blasen an den Füßen nach einem Bett, bieten wir dir deine gemütliche Bleibe, After Sun Lotion und Pflaster. In unserem frisch renovierten Gästehaus können wir bis zu 30 Personen unterbringen auf unserem Naturcampingplatz finden Zelte und Wohnwagen einen schönen Platz. Hunger hast du sicher auch. Essen kriegste.
Unsere Frühstückseier kommen von unseren glücklichen Hühnern und in unserem Backhäuschen kann man im Steinofen selbst Brot backen. Ganz nach deinem Geschmack. Grillen kannst du in unserer Köhlerhütte. Wenn du lieber mit Gitarre und Stockbrot am Lagerfeuer sitzt, ist das auch kein Problem. Wir haben eine große Lagerfeuerstelle die von einer Naturaula umgeben ist. Was ist eine Naturaula? Schau am besten auf unserer Website vorbei.
Gitarre kannst du dort sogar auf einer Bühne spielen. Auch E-Gitarre, denn Strom ist dort auch. Wenn dir das hier dann doch alles zu „natürlich" ist, kannst du einen Abstecher nach Stralsund, Greifswald oder Rostock machen. Schöne und interessante Städte ganz in der Nähe. Am liebsten empfehlen wir dir aber Museen und Sehenswürdigkeiten in unserer direkten Umgebung, denn die hat mehr zu bieten, als man denkt."
Wir freuen uns auf Ihren Besuch!
Lage
4 Gäste berichten …
Matthias im September 2025
Eine wunderbare Location für schöne Feste. Ziemlich alles was man so braucht und Spaß macht. Immer wieder schön da. Danke, daß sowas möglich ist.
Werkstattschule im September 2024
Sehr schönes Gelände und sehr praktische Gebäude und einr super Betreuung von Frau Terpstra. Vielen Dank noch einmal für das Ausleihe des Fahrrads. Wir haben uns sehr woh gefühlt. Vielen Dank für Alles!
Lena im Mai 2022
Sehr nett, super schöner Hof und Landschaft
F. Storckmann im August 2021
Wir haben mit ca. 40 Personen unser Sommerzeltlager dort verbracht. Schöner Zeltplatz mit Naturaula und kleiner Bühne. Tolle Lage mitten in der Natur im Wald. Hier können Kinder auch mal laut sein.
Matthias im September 2025
Eine wunderbare Location für schöne Feste. Ziemlich alles was man so braucht und Spaß macht. Immer wieder schön da. Danke, daß sowas möglich ist.
Werkstattschule im September 2024
Sehr schönes Gelände und sehr praktische Gebäude und einr super Betreuung von Frau Terpstra. Vielen Dank noch einmal für das Ausleihe des Fahrrads. Wir haben uns sehr woh gefühlt. Vielen Dank für Alles!
Lena im Mai 2022
Sehr nett, super schöner Hof und Landschaft
F. Storckmann im August 2021
Wir haben mit ca. 40 Personen unser Sommerzeltlager dort verbracht. Schöner Zeltplatz mit Naturaula und kleiner Bühne. Tolle Lage mitten in der Natur im Wald. Hier können Kinder auch mal laut sein.
30 Betten
7 Schlafräume
2 Gruppenräume
Zeltplatz für 50 Personen
Selbst- und Vollverpflegung
Hausanschrift
Natur- und Erholungshof Recknitzberg
Recknitzberg 1
18195 Grammow



















