26553 Dornumersiel, Nordsee Festland - Niedersachsen
Lütje Hörn
Ferienhaus Krauss
HAUSEIGNUNG
Freizeit, Klassen, Musik, Familien, private Feiern
KAPAZITÄT
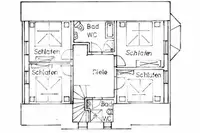
10 Betten in 5 DZ
1 Gruppenraum
SANITÄRE ANLAGEN
3 Duschräume
PREISE
Preis auf Anfrage
Ausstattung
5 Schlafzimmer, 2 Schlafsofas, 2 Kinderbettchen, 2 Kinderhochstühle, Bad mit Badewanne + Dusche, Waschbecken, WC, weiteres Duschbad mit WC, und eine Gäste -Toilette, ferner eine zusätzliche Dusche bei der Sauna, geräumige Sauna, 2,20 m x 2,20 m, Hauswirtschaftsraum.Waschmaschine und Trockner stehen gegen eine geringe Gebühr in einem separaten Raum zur Verfügung. Wäsche kann auch im Garten getrocknet werden (Wäscheseil). Eßtisch mit 12 Stühlen, 2 x 2m lange Sofas, Fernseher mit extra großem Bildschirm.
Einbauküche: Spülmaschine, Großraumkühlschrank, Gefrierschrank, Cerankochfeld, Backofen, Mikrowelle, Kaffeemaschinen, Wasserkocher, Toaster, elektr. Rührgerät genügend Töpfe, Pfannen, Besteck, Geschirr, Gläser...
Freizeit
Terrasse mit gemauertem Grillkamin, Gartenmöblierung, Bollerwagen, Schaukel, SandkastenAusflugsziele
Unser Ferienhaus steht in Westerbur, einem kleinen Teilort des Nordseebades Dornumersiel. Ruhig und idyllisch ist es in dem kleinen ostfriesischen Dorf mit ca. 300 Einwohnern. Das Haus liegt etwa 500m vom Deich und der Störtebeckerstraße zurück, fast mittig zwischen Dornumersiel (ca. 2 km entfernt) und Bensersiel (ca. 5km entfernt).In beiden Sielorten, die gut mit den hauseigenen Fahrrädern erreicht werden können, gibt es feinsandige Strände und jeweils einen kleinen Hafen. In Bensersiel ist der Fähranleger für die Insel Langeoog, die diesem Küstenabschnitt vorgelagert ist.
Bemerkungen
In Nachbarschaft zum Jugendstilhaus und zum Ferienhaus Nordsee steht das Ferienhaus Lütje Hörn. Die Häuser Nordsee und Lütje Hörn stehen in Alleinlage an unserer kleinen Privatstraße, die nur von den Gästen dieser beiden Häusern genutzt wird. Für große Gruppen können diese beiden benachbarten Häuser auch zusammen gemietet werden.Lage
Ein Gast berichtet …
Examen 1980 im Juni 2025
Schon die unproblematische, schnelle und freundliche Terminabwicklung war sehr erfreulich. Die Verwalterin war ausgesprochen aufmerksam, nett und zugewandt. Es gab definitiv nichts zu beanstanden. Das Haus entspricht der Beschreibung im vollen Umfang, ist sauber und in einem klaren Stil gemütlich. Die Matratzen verfügen über eine härtere und eine weichere Liegefläche, so dass auch hier jedem Bedürfnis entsprochen werden kann. Für Gruppen und Familien prima geeignet. Die Lage ist ebenfalls klasse: weit genug ab vom Trubel, nah genug an Meer und Küste. Ideal zum radeln und genießen. Wir haben uns sehr wohlgefühlt.
Examen 1980 im Juni 2025
Schon die unproblematische, schnelle und freundliche Terminabwicklung war sehr erfreulich. Die Verwalterin war ausgesprochen aufmerksam, nett und zugewandt. Es gab definitiv nichts zu beanstanden. Das Haus entspricht der Beschreibung im vollen Umfang, ist sauber und in einem klaren Stil gemütlich. Die Matratzen verfügen über eine härtere und eine weichere Liegefläche, so dass auch hier jedem Bedürfnis entsprochen werden kann. Für Gruppen und Familien prima geeignet. Die Lage ist ebenfalls klasse: weit genug ab vom Trubel, nah genug an Meer und Küste. Ideal zum radeln und genießen. Wir haben uns sehr wohlgefühlt.
Belegungsanfrage
Anmeldung
Belegungsanfrage
| Ellen Krauss | |
| +49 7224 40422 | |
| +49 172 7287346 | |
| zur Webseite | |
Hausanschrift
Lütje Hörn
Ferienhaus Krauss
Lütje Hörn 3
26553 Dornumersiel - Westerbur







