31628 Landesbergen, Hannover Land
Heuhotel
Rittergut Brokeloh
HAUSEIGNUNG
Freizeit, Seminare, Klassen, Familien
KAPAZITÄT
30 Betten
PREISE
8.88 € bis 14.14 € pro Person (Selbstverpflegung)
Ausstattung
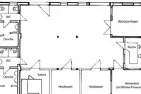
In unserem Heuhotel können Gruppen bis 30 Personen übernachten. Es ist ebenerdig in einem Teil des Pferdestalles von Mai bis Oktober eingerichtet. Das Heuhotel verfügt außerdem über eine vollausgestattete Küche und großzügige Sanitäranlagen. Kickertische, eine Tischtennisplatte und viel Platz bieten außerdem bei schlechtem Wetter zahlreiche Spielmöglichkeiten.Freizeit
Kutschfahrten, Ponyreiten und Pflegen, Füttern und Voltigieren.Ausflugsziele
abwechslungsreichen Endmoränenlandschaft am Naturpark Steinhuder MeerBemerkungen
Für Allergiker steht ein komplett eingerichteter Wohncontainer als Übernachtungsalternative zur Verfügung. Bitte bringen Sie Schlafsack, Taschenlampe, Handtuch und wetterfeste Kleidung mit. Übernachtungskosten inkl. Frühstück. Zusätzlich vier Ferienwohnungen im ehemaligen Pächterhaus.Lage
Kein Gästebericht vorhanden
Hausanschrift
Heuhotel
Rittergut Brokeloh
Rittergut Brokeloh 1
31628 Landesbergen



