26553 Dornumersiel, Nordsee Festland - Niedersachsen
Ferienhaus Nordsee
HAUSEIGNUNG
Freizeit, Seminare, Klassen, Musik, Familien, private Feiern
KAPAZITÄT
14 Betten
1 Gruppenraum
SANITÄRE ANLAGEN
3 Duschräume
EXTRAS
Rollstuhlgerecht, Alleinbelegung ab 8 Personen
PREISE
Preis auf Anfrage
Ausstattung
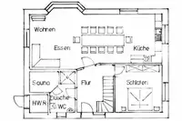
Zum Haus gehört ein ca. 900 m² großes, ringsum eingezäuntes Grundstück mit 3 Stellplätzen. Der Zugang zum Haus erfolgt über eine kleine Privatstraße, an der nur die beiden Häuser "Lütje Hörn" und dieses neue Haus "Nordsee" stehen.5 Schlafzimmer mit insgesamt 14 Betten (2 x zusätzliche Einzelbetten zum Doppelbett und 1 x zusätzl. ein Etagenbett) 2 Babybettchen,
2 Kinderhochstühle, drei Duschbäder (eines davon rollstuhlgerecht), eine Sauna, großer Eßbereich mit 16 Stühlen,
Einbauküche: Spülmaschine, separater Großraumkühlschrank mit Gefrierabteil, Cerankochfeld, Backofen, Mikrowelle, Kaffeemaschinen, Wasserkocher, Toaster, elektr. Rührgerät, großer Bestand an Gläsern, Geschirr, Besteck, Töpfen, Pfannen, usw.
Freizeit
eingezäunter Garten/Liegewiese, Terrasse mit gemauertem Grillkamin, Terrassenmöblierung (Tische, Stühle, Liegen) und für die Kleinen Schaukel, Sandkasten, Bollerwagen. Fahrradfahren, Wattwanderung, Wandern, PlanwagenfahrtenAusflugsziele
Unser Ferienhaus steht in Westerbur, einem kleinen Teilort des Nordseebades Dornumersiel. Ruhig und idyllisch ist es in dem kleinen ostfriesischen Dorf mit ca. 260 Einwohnern. Das Haus liegt etwa 500 m vom Deich und der Störtebeckerstraße zurück, fast mittig zwischen Dornumersiel (ca. 2 km entfernt) und Bensersiel (ca. 5km entfernt).In beiden Sielorten gibt es feinsandige Strände und jeweils einen kleinen Hafen. In Bensersiel ist der Fähranleger für die Insel Langeoog, die diesem Küstenabschnitt vorgelagert ist.
Bemerkungen
Das Haus "Nordsee" wurde im früheren Obstgarten des Jugendstilhauses gebaut. Eigens für dieses Haus und dem etwas weiter hinten liegenden Ferienhaus Lütje Hörn wurde eine kleine Privatstraße errichtet, die nur von unseren Gästen benutzt wird. Um das Haus Nordsee herum ist ein Grundstück von ca.900 m², das im hinteren Gartenbereich eingezäunt ist.Schauen Sie auf unsere Homepage: www.ferienhaus-krauss.de
Lage
Kein Gästebericht vorhanden
Belegungsanfrage
Anmeldung
Belegungsanfrage
| Ellen Krauss | |
| +49 7224 40422 | |
| +49 172 7287346 | |
| zur Webseite | |
Hausanschrift
Ferienhaus Nordsee
26553 Dornumersiel






