43400 Le Chambon-sur-Lignon, Frankreich
Camp Allemand
HAUSEIGNUNG
Freizeit, Klassen, Familien
KAPAZITÄT
14 Betten in 1 EZ und 2 MBZ mit 6 bis 7 Betten
Zeltplatz für 70 Personen
2 Gruppenräume für 14 und 14 Personen
SANITÄRE ANLAGEN
3 Duschräume, 3 Waschräume
EXTRAS
Alleinbelegung ab 5 Personen
PREISE
5.50 € bis 15.00 € pro Person (Selbstverpflegung)
Ausstattung
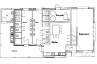
Im Haus befinden sich die Wohnküche und die Sanitärräume:Herren: 2 Toiletten, 2 Pissoirs, 4 Einzelduschen;
Damen: 3 Toiletten, 4 Einzelduschen zusätzlich eine Behindertendusche/WC
Im Obergeschoss befindet sich ein Gruppenraum, ein Mehrbettzimmer mit 2 Stockbetten, 2 Einzelbetten, 2 Kojen für jeweils 3 Personen und ein Einzelbett. Zusätzlich gibt es ein kleines Betreuerzimmer mit Bett, ein Betreuerbad (mit Dusche, Toilette, Waschbecken, Waschmaschine) und einen großen, überdachten Balkon. Es besteht die Möglichkeit zusätzlich Feldbetten in die Gruppenräume zu stellen.
Das Haus ist nicht zentral beheizt, sondern kann über zwei Holzöfen geheizt werden.
Freizeit
Umgebung: Unser Freizeitgelände befindet sich am Rande der kleinen Gemeinde Le Chambon sur Lignon und ist ungefähr 40 km von Le Puy en Velay und 80 km von Valence entfernt.Nach 15 Minuten zu Fuß ist das Gemeindezentrum erreicht. In der Gemeinde befinden sich ein Supermarkt mit Baumarkt, der auch auf Großverbraucher eingerichtet ist, zwei Bäcker und mehrere Metzgereien. Für Notfälle sind verschiedene Ärzte und mehrere Apotheken erreichbar.
Zusätzliche Angaben
Aktivitäten: Kulturelle Möglichkeiten: In ca. 40 km Entfernung: Le Puy en Velay mit mehreren sehenswerten Kirchen und einem frei zugänglichen Stadtpark. Montfaucon: (10 km) ein Bilderzyklus des 16. Jh.. Tence: (5 km) Ein kleines Museum für religiöse Kunst. Annonay: (50 km) Die Stadt der Gebrüder Montgolfier mit Museum.Vienne, Valence, der Pont du Gard und das Mittelmeer bieten sich als Tages- oder Mehrtagesausflug an. Eine Bademöglichkeit befindet sich in Le Chambon, Richtung St. Agrève oder am Lac de Devesset (10 km vom Gelände entfernt). Wanderungen sind ab dem Gelände möglich (Rundwanderung um Le Chambon oder über markierte Wege). Informationsmaterial über Radrundstrecken (zwischen 18 km und einer Mehrtagestour)
Das Freizeitgelände kann von Mai bis Oktober gemietet werden. Zusätzlich besteht auch die Möglichkeit für Kleingruppen bis 14 Personen nur das Haus zu mieten.
- Zeltgelände ca. 2 Hektar
- befestigte Feuerstelle
- ausreichend Tische und Bänke
- Volleyballfeld mit Netz
- Zeltküche auf Betonplatte
- 2. Betonplatte für Zelt
- Material kann nach Absprache gemietet werden
Lage
Belegungsplan
| Dezember 2025 | ||||||
| Mo | Di | Mi | Do | Fr | Sa | So |
| 1 | 2 | 3 | 4 | 5 | 6 | 7 |
| 8 | 9 | 10 | 11 | 12 | 13 | 14 |
| 15 | 16 | 17 | 18 | 19 | 20 | 21 |
| 22 | 23 | 24 | 25 | 26 | 27 | 28 |
| 29 | 30 | 31 | ||||
| Januar 2026 | ||||||
| Mo | Di | Mi | Do | Fr | Sa | So |
| 1 | 2 | 3 | 4 | |||
| 5 | 6 | 7 | 8 | 9 | 10 | 11 |
| 12 | 13 | 14 | 15 | 16 | 17 | 18 |
| 19 | 20 | 21 | 22 | 23 | 24 | 25 |
| 26 | 27 | 28 | 29 | 30 | 31 | |
| Februar 2026 | ||||||
|
||||||
| März 2026 | ||||||
|
||||||
| April 2026 | ||||||
|
||||||
| Mai 2026 | ||||||
|
||||||
| Juni 2026 | ||||||
|
||||||
| Juli 2026 | ||||||
|
||||||
| August 2026 | ||||||
|
||||||
| September 2026 | ||||||
|
||||||
| Oktober 2026 | ||||||
|
||||||
| November 2026 | ||||||
|
||||||
| Dezember 2026 | ||||||
|
||||||
| Januar 2027 | ||||||
|
||||||
| Februar 2027 | ||||||
|
||||||
| März 2027 | ||||||
|
||||||
| April 2027 | ||||||
|
||||||
| Mai 2027 | ||||||
|
||||||
| Juni 2027 | ||||||
|
||||||
| Juli 2027 | ||||||
|
||||||
| August 2027 | ||||||
|
||||||
| September 2027 | ||||||
|
||||||
| Oktober 2027 | ||||||
|
||||||
| November 2027 | ||||||
|
||||||
| Dezember 2027 | ||||||
|
||||||
| Januar 2028 | ||||||
|
||||||
| Februar 2028 | ||||||
|
||||||
| März 2028 | ||||||
|
||||||
| April 2028 | ||||||
|
||||||
| Mai 2028 | ||||||
|
||||||
| Juni 2028 | ||||||
|
||||||
| Juli 2028 | ||||||
|
||||||
| August 2028 | ||||||
|
||||||
| September 2028 | ||||||
|
||||||
| Oktober 2028 | ||||||
|
||||||
| November 2028 | ||||||
|
||||||
| Dezember 2028 | ||||||
|
||||||
| Januar 2029 | ||||||
|
||||||
| Februar 2029 | ||||||
|
||||||
| März 2029 | ||||||
|
||||||
| April 2029 | ||||||
|
||||||
| Mai 2029 | ||||||
|
||||||
| Juni 2029 | ||||||
|
||||||
| Juli 2029 | ||||||
|
||||||
| August 2029 | ||||||
|
||||||
| September 2029 | ||||||
|
||||||
| Oktober 2029 | ||||||
|
||||||
| November 2029 | ||||||
|
||||||
| Dezember 2029 | ||||||
|
||||||
| Januar 2030 | ||||||
|
||||||
| Februar 2030 | ||||||
|
||||||
| März 2030 | ||||||
|
||||||
| April 2030 | ||||||
|
||||||
| Mai 2030 | ||||||
|
||||||
| Juni 2030 | ||||||
|
||||||
| Juli 2030 | ||||||
|
||||||
| August 2030 | ||||||
|
||||||
| September 2030 | ||||||
|
||||||
| Oktober 2030 | ||||||
|
||||||
| November 2030 | ||||||
|
||||||
| Dezember 2030 | ||||||
|
||||||
| Januar 2031 | ||||||
|
||||||
| Februar 2031 | ||||||
|
||||||
| März 2031 | ||||||
|
||||||
| April 2031 | ||||||
|
||||||
| Mai 2031 | ||||||
|
||||||
| Juni 2031 | ||||||
|
||||||
| Juli 2031 | ||||||
|
||||||
| August 2031 | ||||||
|
||||||
| September 2031 | ||||||
|
||||||
| Oktober 2031 | ||||||
|
||||||
| November 2031 | ||||||
|
||||||
| Dezember 2031 | ||||||
|
||||||
| Haus frei | teilweise belegt | auf Anfrage | Haus belegt |
| Jahresübersicht | letzte Bearbeitung: 06.12.2025 |
Kein Gästebericht vorhanden
14 Betten
3 Schlafräume
2 Gruppenräume
Zeltplatz für 70 Personen
Selbstverpflegung
Belegungsanfrage
Anmeldung
Belegungsanfrage
| Förderverein des CVJM Heilbronn e.V. | |
| +49 7131 87020 | |
| zur Webseite | |
Hausanschrift
Camp Allemand
Chante Grenouille
43400 Le Chambon-sur-Lignon
Frankreich













