22941 Bargteheide, Stormarn
BdP Stammesheim Geisterburg
HAUSEIGNUNG
Freizeit, Seminare
KAPAZITÄT
20 Betten
2 Gruppenräume
PREISE
2.50 € bis 4.00 € pro Person (Selbstverpflegung)
Ausstattung
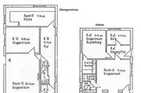
Platz für ca. 20 Personen (Schlafsäcke und Unterlagen müsst ihr selbst mitbringen). Es gibt einen großen und einen kleinen Raum, eine gut ausgestattete Küche und ein (barockes) Badezimmer mit WC und Dusche. Im Anbau sind ein großer Raum mit zwei riesigen Betten, eine Bibliothek mit Sofa, ein Büro mit Kopierer, ein Fotolabor und ein WC untergebracht.Freizeit
Vor dem Anbau ist ein Garten mit Feuerstelle, nebenan der so genannte Hochzeitswald und der Schulwald, ganz in der Nähe ist auch ein Schulsportplatz.Bemerkungen
Das Heim liegt in einem Wohngebiet und wird von der "Innenstadt" (wenn man sie so nennen kann) durch ein Schulgelände und durch den Stadtpark getrennt. Also alles ganz ruhig gelegen und zum Einkaufen ist es nicht allzu weit. Übernachtungen kosten pro Person und Nacht 2,50 Euro, wir nehmen 100,00 Euro Kaution. Wenn ihr uns mal besuchen wollt oder noch Fragen habt, meldet euch bei uns.Lage
Kein Gästebericht vorhanden
Belegungsanfrage
Anmeldung
Belegungsanfrage
| Bdp Stammesheim Geisterburg | |
| +49 4532 9798190 | |
| zur Webseite | |
Hausanschrift
BdP Stammesheim Geisterburg
Lohe 11
22941 Bargteheide



